LUKÁŠ GELNAR ARCHITEKT
KONTAKT
     
     
  Název: Rekonstrukce dělnické kolonie
  Místo: Ostrava - Radvanice
  Rok: 2004
  Stav: studie
  • vizualizace
  • situace
  • foto - stávající stav
  • foto - stávající stav
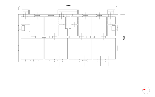
  • půdorys 1 np - stávající stav
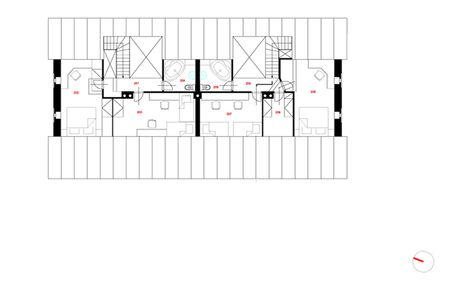
  • varianta I. - půdorys 1 np - návrh
  • varianta I. - půdorys 2 np - návrh
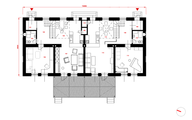
  • varianta II. - půdorys 1 np - návrh
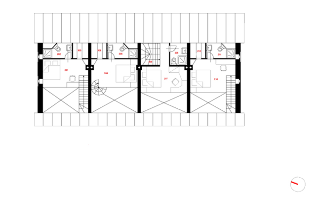
  • varianta II. - půdorys 2 np - návrh
  • příčný řez - návrh
  • vizualizace
  • vizualizace
  • vizualizace
zpět/back
© 2016 LUKAS GELNAR