LUKÁŠ GELNAR ARCHITEKT
KONTAKT
     
     
  Název: Nízkoenergetický rodinný dům
  Místo: Klimkovice
  Rok: 2008
  Stav: studie
  • vizualizace
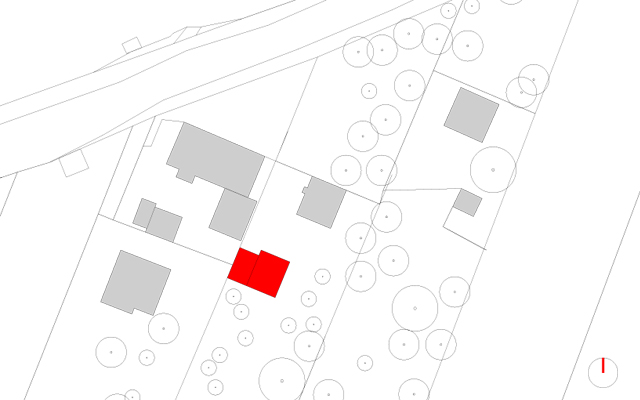
  • situace
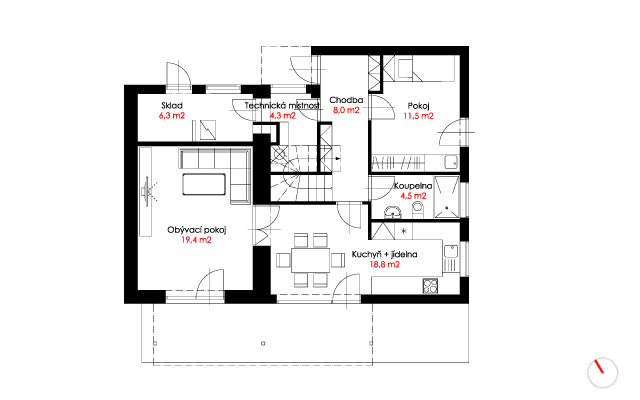
  • půdorys 1 np
  • půdorys 2 np
  • vizualizace
  • vizualizace
zpět/back
© 2016 LUKAS GELNAR