LUKÁŠ GELNAR ARCHITEKT
KONTAKT
     
     
  Název: Bytový dům
  Místo: Ostrava - Poruba
  Rok: 2009/2010
  Stav: Projekt pro územní rozhodnutí
  Spoluautor: Ing.arch Milan Sýkorský
  Generální projektant: KANIA a.s.
  • vizualizace
  • situace
  • půdorys 1 pp
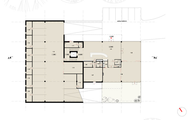
  • půdorys 1 np
  • půdorys 3 np
  • příčný řez
  • vizualizace
  • vizualizace
  • vizualizace
  • vizualizace
zpět/back
© 2016 LUKAS GELNAR