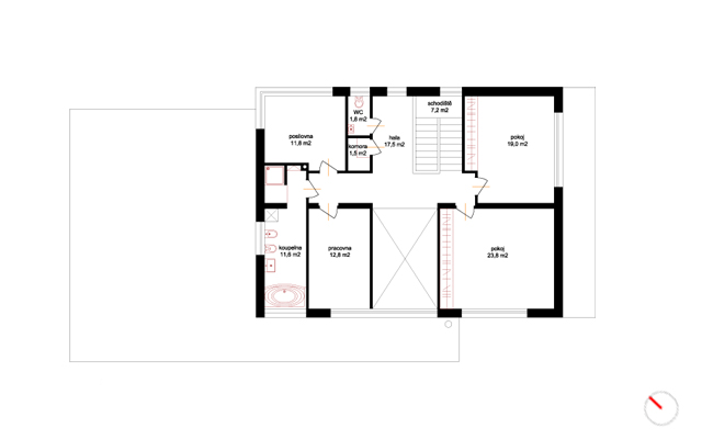
2011 Rodinný dům v Krmelíně
Název:
Rodinný dům v Krmelíně
Místo:
Krmelín
Rok:
2011
Stav:
studie
Generální projektant:
KANIA a.s.
© 2016 LUKAS GELNAR