LUKÁŠ GELNAR ARCHITEKT
KONTAKT
     
     
  Název: Novostavba bytového domu
     
  Místo: Praha - Žižkov
     
  Rok: 2018
     
  Stav: Projekt pro územní rozhodnutí
     
  Spoluautor: Ing.arch Lukáš Čihák
     
  Generální projektant: LCArch s.r.o.
  • vizualizace
  • situace
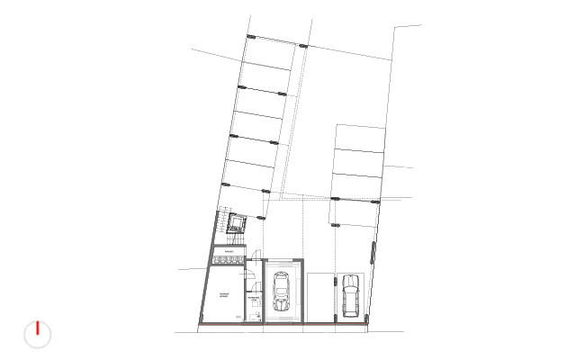
  • půdorys 2 pp
  • půdorys 1 np
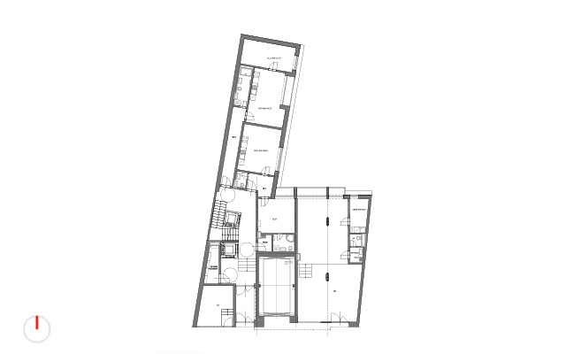
  • půdorys 3 np
  • půdorys 7 np
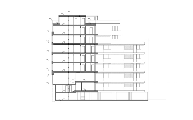
  • příčný řez
  • vizualizace
  • vizualizace
  • vizualizace
  • vizualizace
zpět/back
© 2016 LUKAS GELNAR