LUKÁŠ GELNAR ARCHITEKT
KONTAKT
     
     
  Název: Novostavba rodinného domu
     
  Místo: Tvarožná
     
  Rok: 2018
     
  Stav: architektonická studie
     
  • zákres do fotografie
  • situace
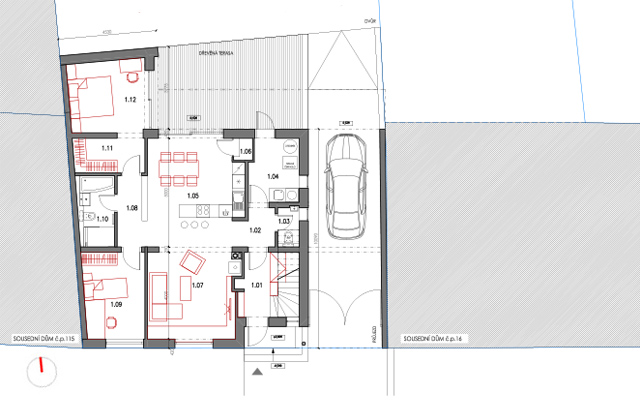
  • půdorys
  • řez
  • zákres do fotografie
  • zákres do fotografie
  • zákres do fotografie
zpět/back
© 2016 LUKAS GELNAR