LUKÁŠ GELNAR ARCHITEKT
KONTAKT
     
     
  Název: Novostavba horské chalupy
     
  Místo: Abertamy - Hřebečná
     
  Rok: 2019 - 2020
     
  Stav: Projekt pro stavební povolení
     
  Spoluautor: Ing.arch Lukáš Čihák
     
  Generální projektant: LCArch s.r.o.
  • vizualizace
  • situace
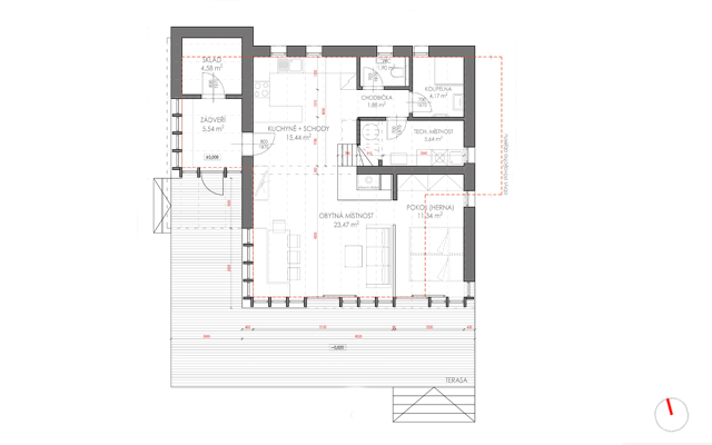
  • půdorys 1 np
  • půdorys podkroví
  • příčný řez
  • vizualizace
  • vizualizace
  • vizualizace
  • vizualizace
  • vizualizace
  • vizualizace - interiér
  • vizualizace - interiér
zpět/back
© 2016 LUKAS GELNAR