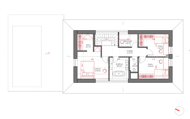
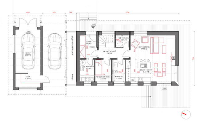
Název:
Novostavba rodinného domu
Místo:
Janovice
Rok:
2019-20
Stav:
Architektonická studie
© 2016 LUKAS GELNAR