LUKÁŠ GELNAR ARCHITEKT
KONTAKT
     
     
  Název: Bytové domy
     
  Místo: Strážnice
     
  Rok: 2021
     
  Stav: architektonická studie
     
  • vizualizace
  • situace
  • půdorys 1PP
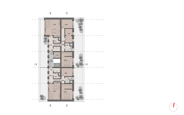
  • půdorys 1NP
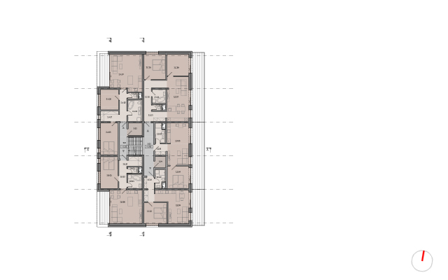
  • půdorys 2NP
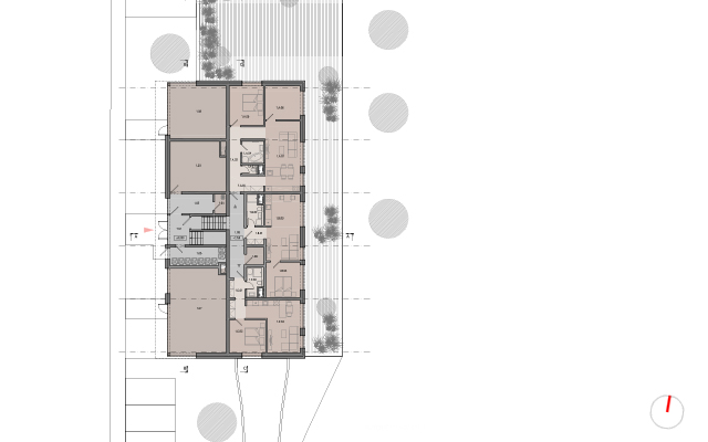
  • půdorys 3NP
  • vizualizace
  • vizualizace
  • vizualizace
  • vizualizace
zpět/back
© 2016 LUKAS GELNAR