LUKÁŠ GELNAR ARCHITEKT
KONTAKT
     
     
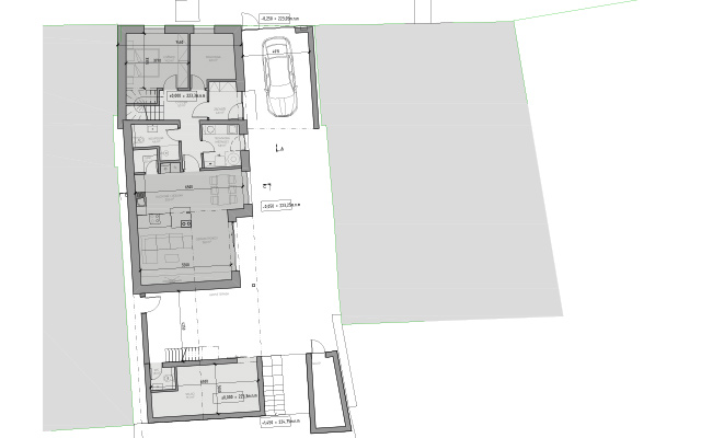
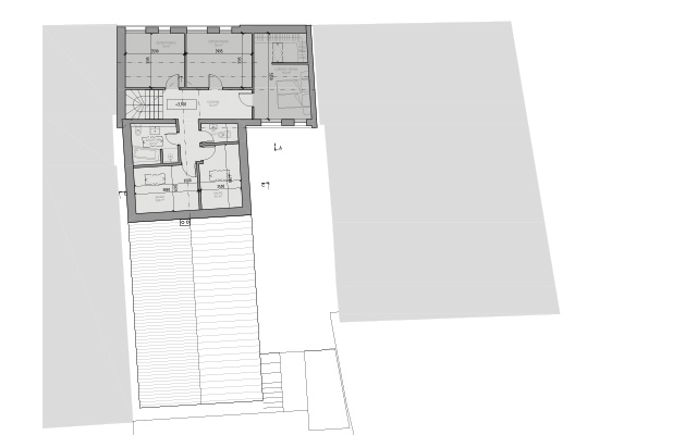
  Název: Rodinný dům
     
  Místo: Lipov
     
  Rok: 2022
     
  Stav: architektonická studie
     
  • vizualizace
  • situace
  • půdorys 1NP
  • půdorys 2NP
  • vizualizace
  • vizualizace
  • vizualizace
  • vizualizace
zpět/back
© 2016 LUKAS GELNAR