LUKÁŠ GELNAR ARCHITEKT
KONTAKT
     
     
  Název: Rekonstrukce a dostavba
  provozního a výrobního objektu
  HVM Plasma
     
  Místo: Modřice
     
  Rok: 2017/2018
  Stav: studie
     
  Spoluautor: Ing. arch. Lukáš Čihák
     
  Generální projektant: LCArch s.r.o.
  • vizualizace
  • situace
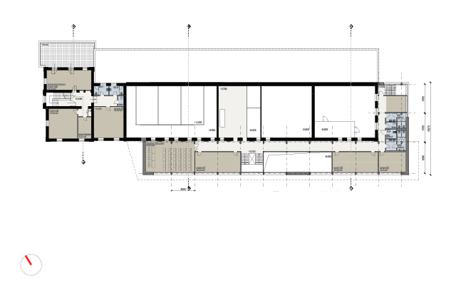
  • půdorys 1NP
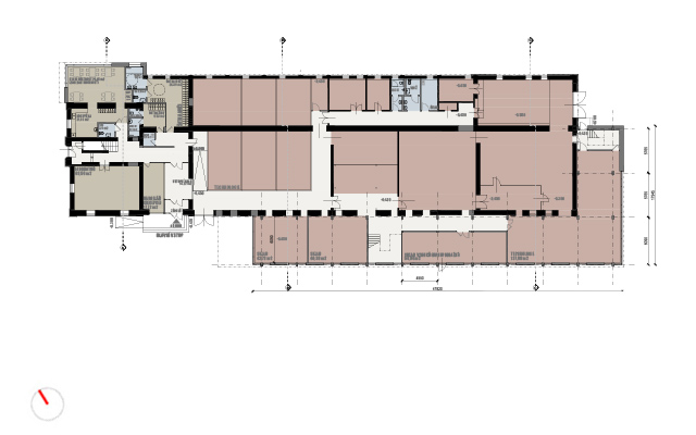
  • půdorys 2NP
  • příčný řez
  • vizualizace
  • vizualizace
  • vizualizace
  • vizualizace
  • vizualizace
zpět/back
© 2016 LUKAS GELNAR