LUKÁŠ GELNAR ARCHITEKT
KONTAKT
     
     
  Název: Tribuna fotbalového hřiště + zázemí
  Místo: Janovice
  Rok: 2008
  Stav: územní rozhodnutí
  Spoluautor: Ing.arch Milan Sýkorský
  Generální projektant: KANIA a.s.
  Vizualizace: Ondřej Sikula
  • vizualizace
  • situace
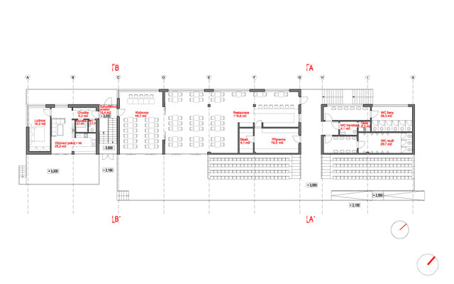
  • půdorys 1 np
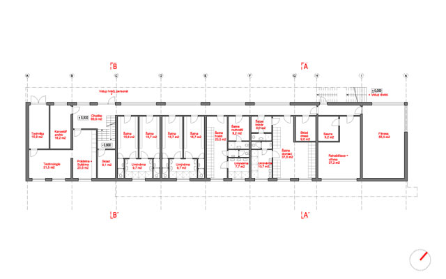
  • půdorys 2 np
  • půdorys 3 np
  • řezy
  • vizualizace
zpět/back
© 2016 LUKAS GELNAR