LUKÁŠ GELNAR ARCHITEKT
KONTAKT
     
     
  Název: Sportovní hala při Základní škole
  Místo: Čeladná
  Rok: 2009 - 2010
  Stav: Realizace
  Spolupráce: Ondřej Koutňák
  Generální projektant: KANIA a.s.
  • foto
  • situace
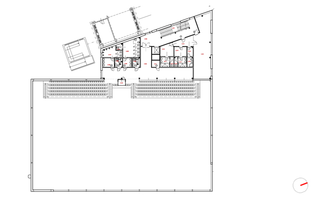
  • půdorys 1 np
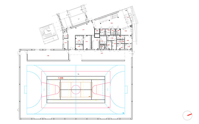
  • půdorys 2 np
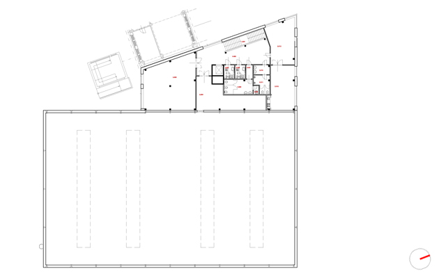
  • půdorys 3 np
  • řezy
  • foto - exteriér
  • foto - exteriér
  • foto - exteriér
  • foto - interiér
  • foto - interiér
  • foto - interiér
  • foto - interiér
  • foto - interiér
zpět/back
© 2016 LUKAS GELNAR