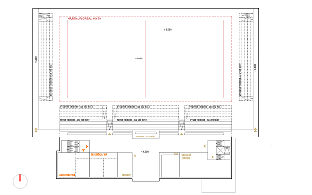
Název:
Sportovní hala Bohemians
Místo:
Praha
Rok:
2018
Stav:
Studie
Spoluautor:
Ing. arch. Lukáš Čihák
Generální projektant:
LCArch s.r.o.
© 2016 LUKAS GELNAR