LUKÁŠ GELNAR ARCHITEKT
KONTAKT
     
     
  Název: Novostavba mateřské školy
     
  Místo: Veselí nad Moravou, Hutník
     
  Rok: 2021
     
  Stav: architektonická studie
     
  • vizualizace
  • situace
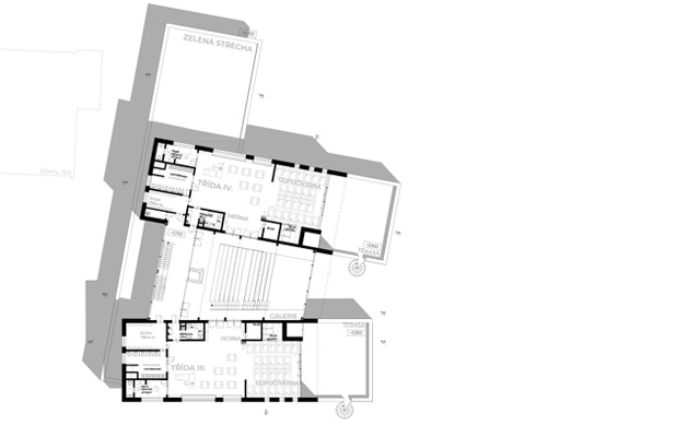
  • půdorys 1NP
  • půdorys 2NP
  • řezy
  • vizualizace
  • vizualizace
  • vizualizace
  • vizualizace
  • vizualizace
  • vizualizace - interiér
  • vizualizace - interiér
  • vizualizace - interiér
  • vizualizace - interiér
  • vizualizace - interiér
zpět/back
© 2016 LUKAS GELNAR