LUKÁŠ GELNAR ARCHITEKT
KONTAKT
     
     
  Název: Novostavba pastoračního centra sv. Dona Bosca
     
  Místo: Ostrožská Nová Ves
     
  Rok: 2022
     
  Stav: stavební povolení
     
  Generální projektant: M2 Projekt s.r.o.
     
  • vizualizace
  • situace
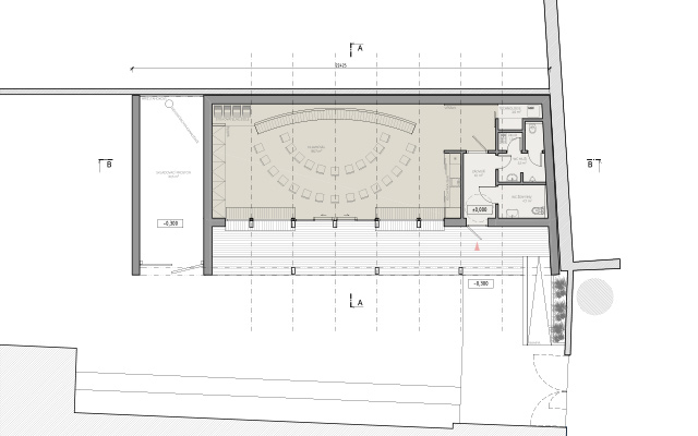
  • půdorys 1NP
  • řez
  • vizualizace
  • vizualizace
  • vizualizace
  • vizualizace - interiér
  • vizualizace - interiér
  • vizualizace - interiér
zpět/back
© 2016 LUKAS GELNAR